Скрытая система инсталляции Alcadrain для сухой установки (для гипсокартона)
Скрытая система инсталляции Alcadrain для сухой установки в гипсокартон — это продуманное решение для современных ванных комнат, где важны эстетика и функциональность. Произведенная в Чехии, эта инсталляция отличается высоким качеством сборки и надежностью, что подтверждается 15-летней гарантией от производителя.
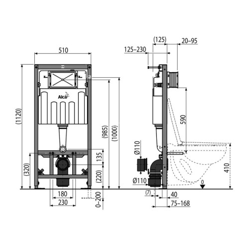
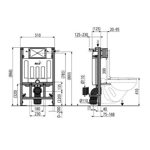
Данный комплект предназначен для скрытого монтажа подвесной раковины. Его ключевая особенность — система сухой установки, которая позволяет быстро и без «мокрых» процессов интегрировать конструкцию в гипсокартонную перегородку. Это значительно ускоряет и упрощает ремонт.
Модель оснащена механическим управлением сливом воды. Сливная система предлагает две кнопки, одна из которых активирует экономный режим расхода воды. Это практичное решение для ежедневного использования, позволяющее контролировать потребление ресурсов.
Габаритные размеры конструкции (112 см в высоту и 51 см в ширину) и вес 52 кг обеспечивают необходимую устойчивость и прочность. Инсталляция Alcadrain — это не просто несущая раму, а законченная система, готовая к подключению сантехники.
Мы осуществляем доставку во все регионы. С этим комплектом ваша ванная комната приобретет современный и лаконичный вид, а все технические элементы будут надежно скрыты от глаз.







































































































































































































































































































































