Скрытая система инсталляции Alcadrain Solomodul, для сухой установке в пространство, для лиц с огран
Скрытая система инсталляции Alcadrain Solomodul — это комплексное решение для современного санузла, которое позволяет спрятать все технические элементы и создать безупречный, лаконичный интерьер. Модель предназначена для сухого монтажа в заранее подготовленную нишу или фальш-стену, что обеспечивает максимальную эстетику и экономию пространства.
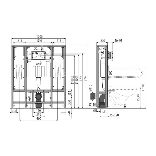
Произведенная в Чехии с гарантией 15 лет, эта система демонстрирует высочайшее европейское качество сборки и долговечность. Несущая рама изготовлена из прочного металла, что гарантирует устойчивость и надежность даже при интенсивной эксплуатации.
Система оснащена бачком скрытого монтажа с механическим управлением. Подвод воды осуществляется сзади, что упрощает подключение и скрывает коммуникации. Особого внимания заслуживает инновационная система слива: две кнопки позволяют выбрать экономный режим расхода воды, способствуя бережному отношению к ресурсам.
Комплект идеально подходит для установки раковины. Габаритные размеры конструкции (ширина 100 см, высота 127.4 см) и вес 128 кг требуют профессионального подхода к монтажу. Мы обеспечиваем доставку во все регионы и помощь в установке.
Alcadrain Solomodul — это не просто инсталляция, а тщательно продуманная модульная система для тех, кто ценит безупречный дизайн, функциональность и качество на долгие годы.



































































































































































































































































































































